Page suivante
Page précédente
Altorf (67120)

Maison 5 pièce(s) 4 chambre(s) 167 m²

1
2
250 m²
451 500 €
Réf 119 / 25

Réelle opportunité à saisir : la maison est déjà construite ! Reste à personnaliser selon vos envies !

MAISON CLE EN MAIN prête à décorer ! Normes BBC à Altorf (disponible fin 2025), à 5 minutes de Molsheim et 15 minutes de Strasbourg,

Venez découvrir cette maison spacieuse et contemporaine où il ne vous restera qu'à choisir et personnaliser votre cuisine, vos sols et peinture intérieure selon vos envies. D’environ 167m² habitables avec un comble aménageable, construite selon les normes BBC (bâtiment basse consommation) + normes PMR sur une parcelle privative d'environ 2.5 ares, offrant des prestations modernes et confortables, à seulement 5 minutes de Molsheim. De plus, vous pourrez pleinement profiter d'une terrasse + jardin privés.

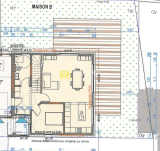
---> L'INTERIEUR SE COMPOSE :

  • 1 hall d'entrée

  • 1 salle d'eau avec WC

  • 1 pièce de vie spacieuse avec salon + salle à manger donnant vers l'extérieur

  • 1 pièce prévue pour une chambre en rez-de-chaussée

  • 1 cuisine ouverte (à choisir selon vos envies) avec accès vers l'extérieur

  • 1 salle de bain à l’étage déjà installée

  • 1 WC séparé avec lave-mains

  • 4 chambres à l'étage, dont 1 suite parentale avec salle d'eau

  • 1 dégagement + 1 espace buanderie + local technique

  • 1 comble aménageable (env. 35m² habitables)

---> Eléments techniques installés :

  • Pompe à chaleur Air/eau, avec chauffage au sol sur les deux niveaux,

  • Ballon thermodynamique,

  • Isolation extérieure performante,

  • Menuiseries PVC en TRIPLE vitrage tablette en aluminium,

  • 1 Garage accolé à la maison avec porte motorisée + 2 places de stationnement extérieures.

La maison est implantée sur une parcelle d'environ 2.5 ares privative avec un chemin d'accès commun en indivision d'environ 4.75 ares. Et vous aurez toute la liberté de choisir les finitions (carrelage, peinture, cuisine, déco ...) en fonction de vos goûts et envies, en optant pour les matériaux qui vous ressemblent.

Disponibilité : dernier trimestre 2025 – prêt à décorer. Pas besoin de chercher le terrain, de faire toutes les démarches administratives pour l'obtention du permis de construire, de suivre chaque corps de métiers lors de la construction. Tout est déjà prêt à vous accueillir avec vos idées pour les finitions et aménagement de la maison !

---> ATOUTS :

- Maison neuve déjà construite !

- Econome en énergie (nouvelles normes énergétiques)

- Spacieuse et confortable

- Environnement paisible et recherché en seconde ligne

- A personnaliser selon vos goûts

DPE vierge pour l'instant car le système de chauffage (PAC) n'est pas encore installé.

PRIX : 451 500 € HAI (dont 5% TTC d'honoraire agence charge acquéreur). Prix hors honoraires : 430 000€

CONTACT : Tristan Charoy Négociateur immobilier 06 08 33 07 80


www.eckert-immobilier.com Les informations sur les risques auxquels ce bien est exposé sont disponibles sur le site Géorisques : www.georisques.gouv.fr SARL ECKERT IMMOBILIER - Gérant : Guillaume ECKERT - 6A Avenue de la Gare ROSHEIM - eckert.immobilier@orange.fr www.eckert-immobilier.com - Téléphone : 03 88 47 27 10 SARL au capital de 500 000 € - R.C. Saverne TI 529 414 740 SIRET 52941474000025 -Code APE 6831 Z Carte professionnelle n° CPI 6701 2016 000 003 255. Délivrée par CCI Strasbourg et du Bas-Rhin. Ne reçoit aucun fond Organisme de garanties SOCAF 26 avenue de Suffren 75015 PARIS CEDEX N° individuel d’identification à la TVA : FR85529414740 Soumis aux dispositions légales de la loi HOGUET de son décret d’application de 1970.

Bilan énergétique

Diagnostics énergetiques
A propos de ce bien Caractéristiques de ce bien
  • Surface 167 m²
  • carrez 167 m²
  • terrain 250 m²
  • 4 chambre(s)
  • 1 salle(s) de bain
  • 2 salle(s) d'eau
  • construit en 2025
  • cuisine
  • Chauffage individuel : trad_type_chauff_air_eau (pompe à chaleur)
  • 1 garage(s)
  • 2 parking(s)
  • 3 niveau(x)

Financier

Informations financières
Prix de vente honoraires TTC inclus 451 500 €
Prix net vendeur 430 000 €
Prix de vente honoraires TTC exclus 430 000 €
Honoraires TTC à la charge acquéreur 5 %

Autour du bien

Découvrez le quartier

Simulation

Calcul des mensualités
* Champs obligatoires
ECKERT IMMOBILIER Agence