Page suivante
Page précédente
Altorf (67120)

Maison 5 pièce(s) 4 chambre(s) 142 m²

2
190 m²
1
399 000 €
Réf 118 / 25

Votre contact pour ce bien : Tristan Charoy Négociateur immobilier 06 08 33 07 80


MAISON CLE EN MAIN prête à décorer ! Normes BBC à Altorf (disponible fin 2025), à 5 minutes de Molsheim et 15 minutes de Strasbourg,

Venez découvrir cette maison spacieuse et contemporaine où il ne vous restera qu'à choisir et personnaliser votre cuisine, vos sols et peinture intérieure selon vos envies. D’environ 142m² habitables avec un comble aménageable, construite selon les normes BBC (bâtiment basse consommation) + normes PMR, sur une parcelle privée d'environ 1.90 ares avec 1 jardin à l'avant et une terrasse à l'arrière, à seulement 5 minutes de Molsheim.

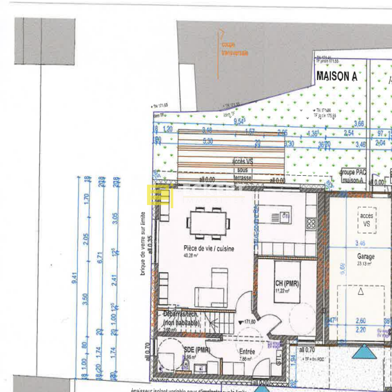
* L’intérieur se compose de :

  • 1 hall d'entrée + 1 local technique

  • 1 salle d'eau avec WC déjà installés

  • 1 pièce de vie spacieuse avec salon, salle à manger et espace prévu pour une chambre si besoin

  • 1 cuisine ouverte (à choisir selon vos envies) avec accès sur la terrasse privée,

  • 1 salle d’eau à l’étage avec douche à l’italienne déjà installée,

  • 1 WC séparé avec lave-mains

  • 3 chambres avec accès au balcon, dont 1 chambre parentale (env. 14,10m²)

  • 1 dégagement + 1 espace buanderie

  • 1 comble aménageable (env. 25m² habitables)

* Eléments techniques installés :

  • Pompe à chaleur Air/eau qui sera installée, avec chauffage au sol sur les deux niveaux,

  • Ballon thermodynamique,

  • Isolation extérieure performante,

  • Menuiseries PVC en TRIPLE vitrage tablette en aluminium,

  • Garage spacieux avec porte motorisée d'environ 40m² + 2 places de stationnement extérieures.

La maison est implantée sur une parcelle d'environ 1.90 ares privative avec un chemin d'accès commun en indivision d'environ 4.75 ares. Les extérieurs sont à aménager selon vos envies, tout comme la cuisine, qui restera à installer selon vos goûts, ainsi que les sols et peinture intérieure des murs.

Disponibilité : dernier trimestre 2025 – prêt à décorer (déjà construite, reste à personnaliser comme vous le désirez).

* ATOUTS :

- Maison neuve déjà construite !

- Econome en énergie (nouvelles normes énergétiques)

- Spacieuse et confortable

- Environnement paisible et recherché en seconde ligne

- A personnaliser selon vos goûts

DPE vierge pour l'instant car le système de chauffage (PAC) n'est pas encore installé.

PRIX : 399 000 € HAI (dont 5% TTC d'honoraire agence charge acquéreur). Prix hors honoraires : 380 000€

CONTACT : Tristan Charoy Négociateur immobilier 06 08 33 07 80


www.eckert-immobilier.com Les informations sur les risques auxquels ce bien est exposé sont disponibles sur le site Géorisques : www.georisques.gouv.fr SARL ECKERT IMMOBILIER - Gérant : Guillaume ECKERT - 6A Avenue de la Gare ROSHEIM - eckert.immobilier@orange.fr www.eckert-immobilier.com - Téléphone : 03 88 47 27 10 SARL au capital de 500 000 € - R.C. Saverne TI 529 414 740 SIRET 52941474000025 -Code APE 6831 Z Carte professionnelle n° CPI 6701 2016 000 003 255. Délivrée par CCI Strasbourg et du Bas-Rhin. Ne reçoit aucun fond Organisme de garanties SOCAF 26 avenue de Suffren 75015 PARIS CEDEX N°individuel d’identification à la TVA : FR85529414740 Soumis aux dispositions légales de la loi HOGUET de son décret d’application de 1970.

Bilan énergétique

Diagnostics énergetiques
A propos de ce bien Caractéristiques de ce bien
  • Surface 142 m²
  • carrez 142 m²
  • terrain 190 m²
  • 4 chambre(s)
  • 2 salle(s) d'eau
  • construit en 2025
  • cuisine
  • Chauffage individuel : trad_type_chauff_air_eau (pompe à chaleur)
  • 1 garage(s)
  • 2 parking(s)
  • 3 niveau(x)

Financier

Informations financières
Prix de vente honoraires TTC inclus 399 000 €
Prix net vendeur 380 000 €
Prix de vente honoraires TTC exclus 380 000 €
Honoraires TTC à la charge acquéreur 5 %

Autour du bien

Découvrez le quartier

Simulation

Calcul des mensualités
* Champs obligatoires
ECKERT IMMOBILIER Agence